Bauherrschaft
Politische Gemeinde Hombrechtikon
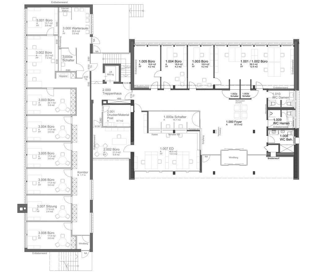
Auftrag
Umbau und Erweiterung der bestehenden Gemeindeverwaltung mit Einbezug der Schulverwaltung.
Baudaten
Abbruch des Satteldaches auf dem Haupttrakt. Erweiterung um ein 2. Obergeschoss in Mischbauweise (Massiv-/Holzbau).
Rückbau des Seitenflügels bis auf Decke über Untergeschoss. Neuaufbau des Seitenflügels über zwei Vollgeschosse in Massivbauweise.
Erdbebenertüchtigung der bestehenden Bausubstanz. Erhöhtes Augenmerk auf sicherheitstechnische Belange.
