140300_1_Ruetti
portrait
140295_Ruetti
140167_Ruetti
140139_Ruetti
140153_Ruetti
EliteCAD - K:EliteCADProjekte742.00Ausführungspläne2803_1

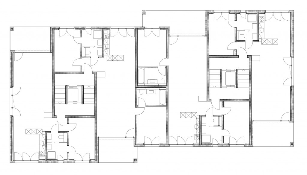
MFH Postweg Waedenswil Au

Auftrag

Neubau eines Mehrfamilienhauses in Hanglage mit 17 Wohnungen und einer Einstellhalle.

 

Baudaten

9 2.5-Zimmerwohnungen
5 3.5-Zimmerwohnungen
2 4.5-Zimmerwohnungen
1 6.5-Zimmerwohnung
Gesamt 17 Wohnungen
Kubatur (SIA 116) 9’364 m3

Ausführung

2012 – 2013